Нужен дизайн интерьера?
Представьте себе утро в Вашем идеальном интерьере на высоком этаже, где стеклянная спальня становится оазисом света и спокойствия. Первые лучи солнца нежно пробиваются, наполняя пространство мягким золотистым светом. Вы просыпаетесь и смотрите в окно, где под вами раскинулся город, а на горизонте виднеются зелёные парки и деревья, которые словно поддерживают ваше настроение.
Здесь вы можете наслаждаться утренним кофе, наблюдая за жизнью города, которая постепенно пробуждается, или просто позволить своим мыслям унестись далеко за пределы этих высот. Каждое утро начинается с вдохновения — вы находитесь в гармонии с природой и городом одновременно.
Интерьер вашей спальни продуман до мелочей: мягкие, натуральные материалы создают уют и тепло. Мягкие шторы на окнах, позволяющие нежному свету пробиваться внутрь, а под ногами — паркетная доска. Это пространство, где гармония с природой и городом становится вашей реальностью. Стеклянные поверхности отражают свет и создают игру теней, наполняя пространство динамикой и жизнью.
Вы добавляете элементы, которые дарят радость: любимые книги на полках, картины, которые вдохновляют, и растения, придающие свежесть воздуху. Каждая деталь — это отражение Вашей души, Вашего стиля и стремления к гармонии.
Ваша квартира — это не просто комнаты; это пространство для мечты, отдыха и восстановления сил. Здесь Вы можете быть собой, свободным от суеты внешнего мира. Каждый вечер Вы укутываетесь в уютное одеяло, слушая шепот ветра за окном, зная, что Ваш идеальный интерьер стал Вашим личным убежищем — местом, где сбываются мечты и рождаются новые идеи.
Не упустите возможность сделать этот оазис своим! Закажите уникальный интерьер, который будет отражать Вашу индивидуальность и дарить вдохновение каждый день.






















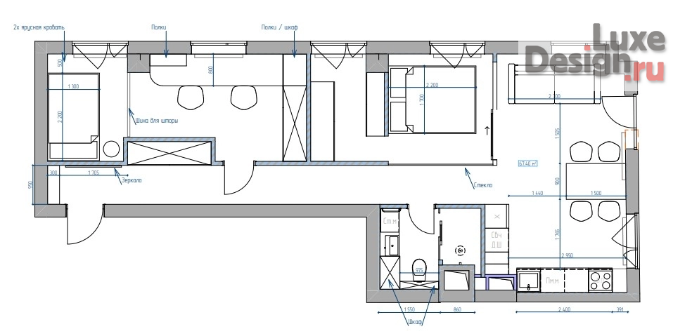
Визуализация проекта
Стиль интерьера:
Современный стиль
Работа дизайнера:
Егерева Елена